Verhuizing
11, 12 en 13 februari 2026 verhuizen we naar ons nieuwe gebouw.
De kinderen starten vanaf 23 februari 2026 in het nieuwe gebouw.
Routing nieuwbouw Stationslaan 3
Iedere bouw heeft een eigen ingang. Zie hieronder de routing.

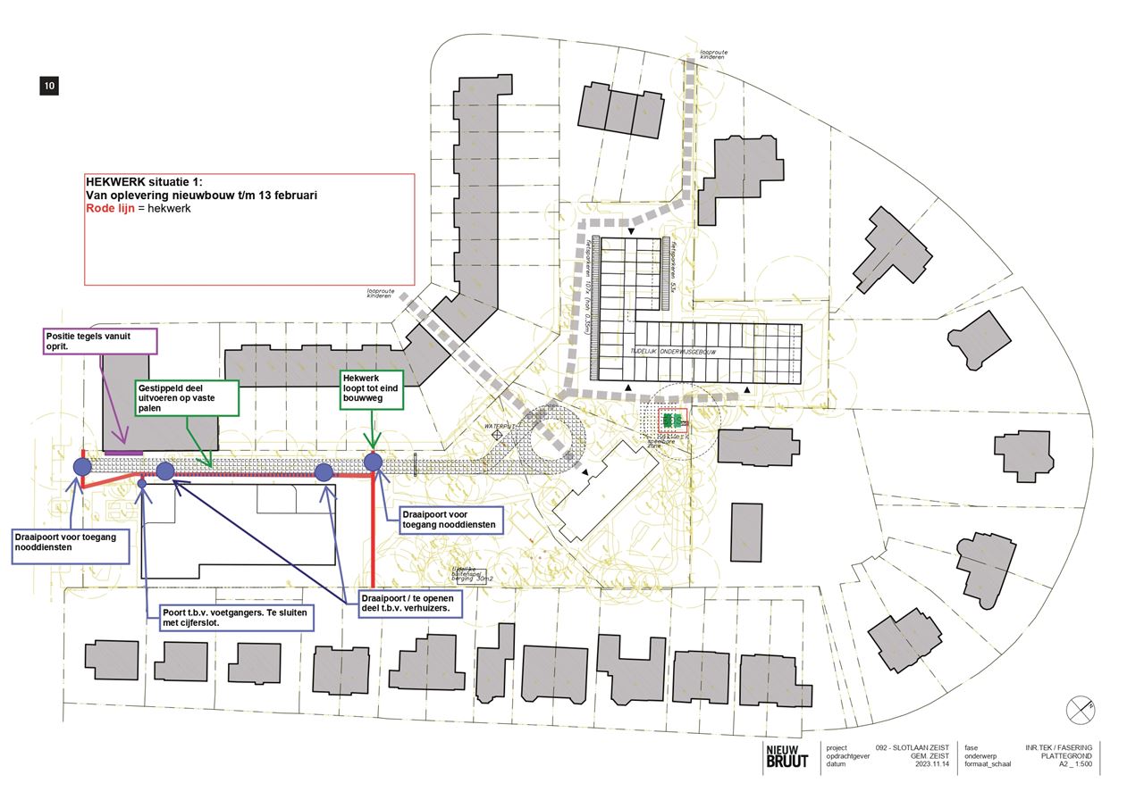
Terrein situatie in fases
Hekwerk situatie 1: 9 jan tm 13 febr
Van oplevering nieuwbouw t/m verhuizing

Hekwerk situatie 2: 14 febr tm ongeveer eind maart
Uithuizing TSG tm verwijdering TSG

Hekwerk situatie 3: eind maart tm start bouw MFA
Na verwijdering TSG, tot start realisatie MFA
